CASOS DE ÉXITO
TTC – THE TOP COLOURS
PROYECTOS Y REFORMAS
LaLong
¿Qué buscaba el cliente?
El cliente buscaba transformar un local destrozado de venta de alimentos y snacks en un centro médico estético. Querían mantener la continuidad con su identidad gráfica, aprovechar eficientemente un espacio de 50 metros cuadrados y crear tres cabinas, una oficina, un área de aseo y una recepción.
Soluciones TTC
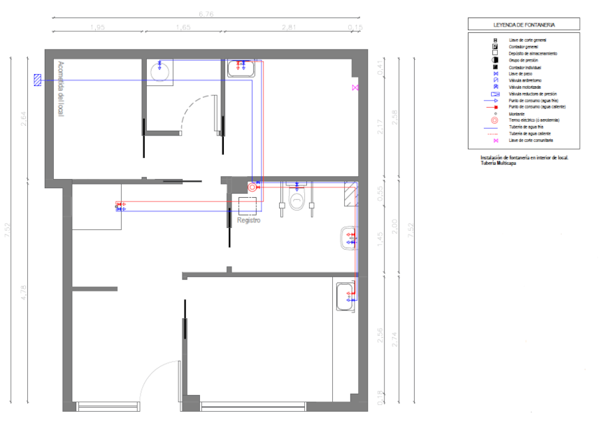
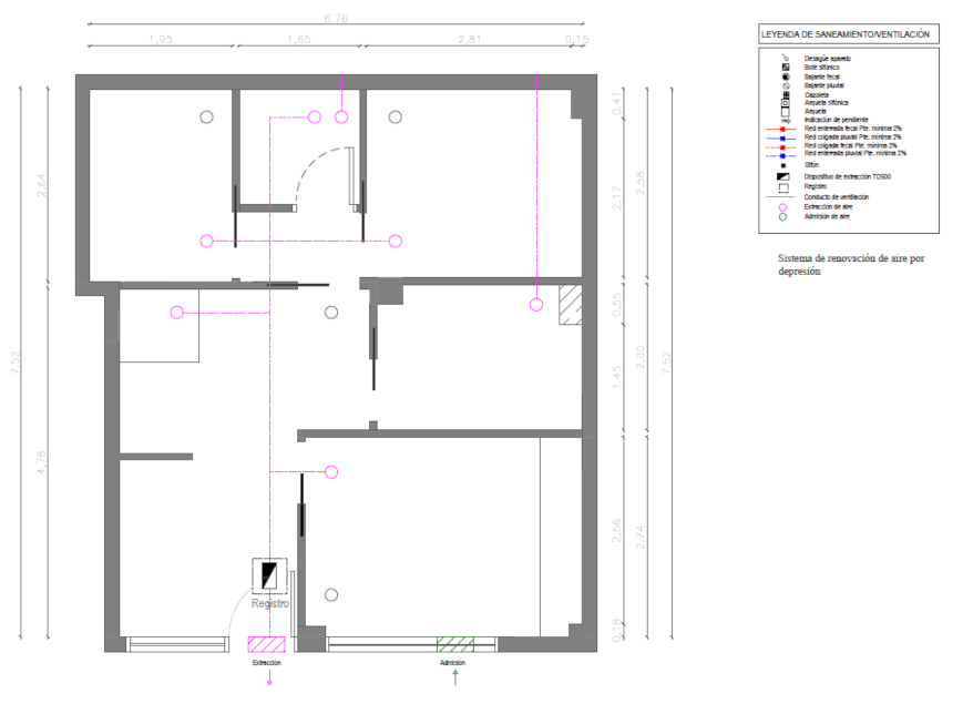
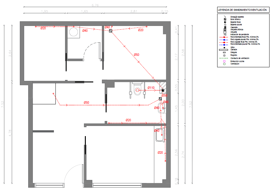
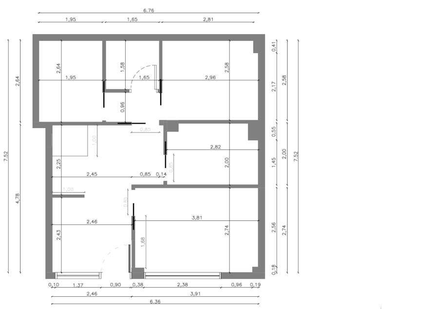
Nuestra solución abordó integralmente la transformación de un local deteriorado de venta de alimentos en un moderno centro médico estético de 50 metros cuadrados, cumpliendo con los deseos del cliente. Iniciamos con la reconstrucción total, optimizando el espacio con planos detallados para cada sección, incluyendo cabinas de tratamiento, recepción, oficina y área de aseo. La planificación minuciosa permitió mantener la identidad gráfica original del cliente, respetando colores distintivos y fluidez visual.
El diseño en 3D facilitó la visualización del proyecto, asegurando una toma de decisiones informada. La selección de muebles se hizo de manera colaborativa, priorizando estética, funcionalidad y comodidad, complementando la imagen del centro médico.
Este enfoque resultó en un espacio cohesivo y acogedor. Desde la demolición hasta la selección de muebles, cada paso fue ejecutado con atención al detalle y compromiso con la excelencia.
El centro médico estético final no solo cumplió, sino que superó las expectativas, ofreciendo un entorno moderno y funcional que refleja la visión del cliente y proporciona una experiencia positiva tanto para el personal como para los pacientes.
ANTES
DISEÑO 3D
DESPUÉS
REFORMA TERMINADA
PLANOS
